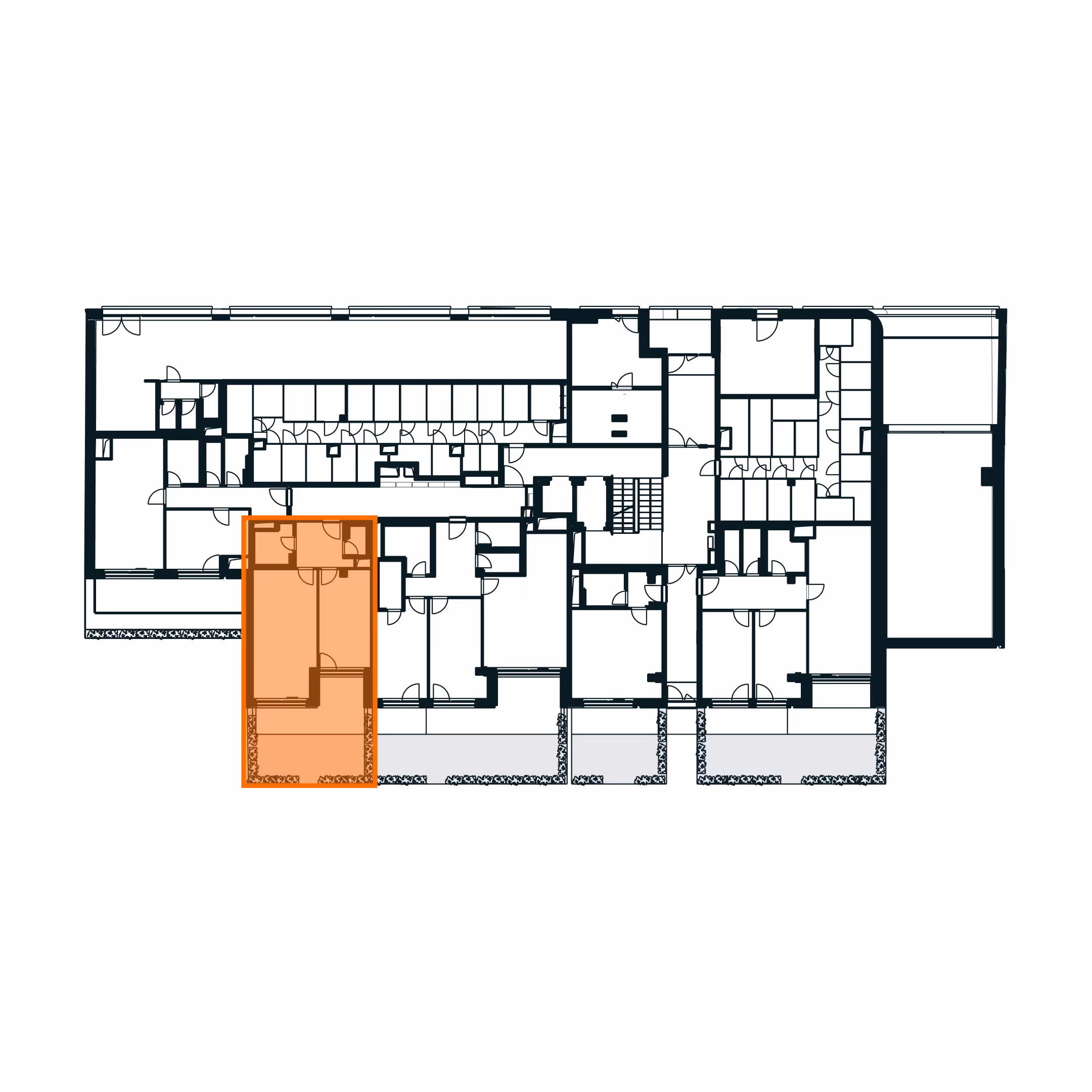
Byt č.
112
Dispozice
2+kk
podlaží
1. NP
celková plocha
80,51
m²
Cena s DPH
9 863 336
Kč

přehled ploch
1
CHODBA
6,10
m²
2
OBÝVACÍ POKOJ + KK
22,40
m²
3
POKOJ
14,10
m²
4
KOUPELNA + WC
4,20
m²
5
WC
1,90
m²
m²
m²
m²
m²
m²
m²
m²
Užitná plocha
48,70
m²
Podlahová plocha
50,71
m²
6
ZAHRADA
29,80
m²
m²
Garážové stání
č.
Cena parkovacího stání 750 000 Kč bez DPH.
26
Sklepní kóje
č.
Velikost sklepní kóje:
2,9
m2
S.08
Zenklova
rezidenční zahrada


Plochy místností jsou orientační. Zařízení v půdorysu (nábytek, kuchyň, spotřebiče) není součástí dodávky. Specifikace dodávky a vybavení jsou ve standardním provedení, které je přílohou Smlouvy. Vizualizace jsou ilustrativní. Developer si vyhrazuje právo na změny.
58 bytů
Stačí jeden kontakt a nový domov může být váš
ENERGETICKÁ TŘÍDA A
DOKONČENÍ 4Q 2027
Máte zájem?
Oops! Something went wrong while submitting the form.