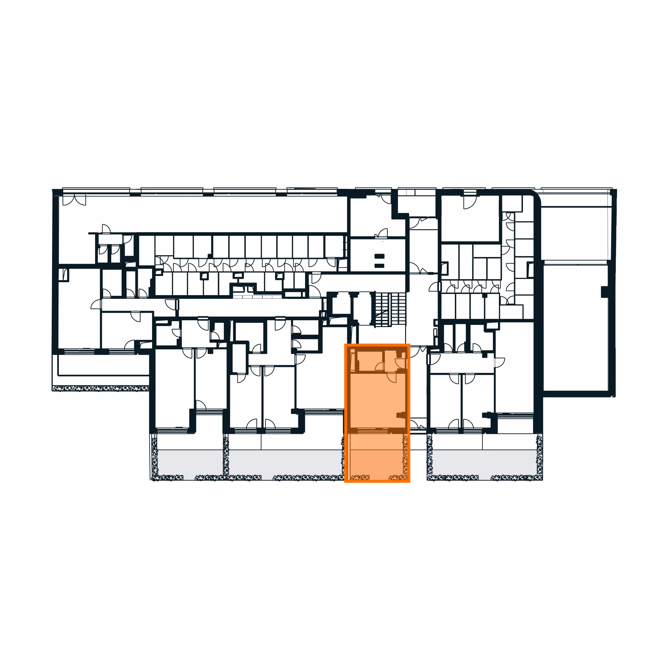
Byt č.
211
Dispozice
1+kk
podlaží
1. NP
celková plocha
51,65
m²
Cena s DPH
NA DOTAZ
Kč

přehled ploch
1
CHODBA
3,00
m²
2
OBÝVACÍ POKOJ + KK
22,30
m²
3
KOUPELNA + WC
4,10
m²
m²
m²
m²
m²
m²
m²
m²
m²
m²
Užitná plocha
29,40
m²
Podlahová plocha
30,85
m²
4
ZAHRADA
20,80
m²
m²
Garážové stání
č.
Cena parkovacího stání 750 000 Kč bez DPH.
Sklepní kóje
č.
Velikost sklepní kóje:
m2
Zenklova
rezidenční zahrada


Plochy místností jsou orientační. Zařízení v půdorysu (nábytek, kuchyň, spotřebiče) není součástí dodávky. Specifikace dodávky a vybavení jsou ve standardním provedení, které je přílohou Smlouvy. Vizualizace jsou ilustrativní. Developer si vyhrazuje právo na změny.
58 bytů
Stačí jeden kontakt a nový domov může být váš
ENERGETICKÁ TŘÍDA A
DOKONČENÍ 4Q 2027
Máte zájem?
Oops! Something went wrong while submitting the form.